Escritório: Numen Arquitetura (e-mail)
Localização do Escritório: Brasília, Brasil
Área: 250,00 m²
Tipo de projeto: Casas
Localização do projeto: Brasília, Brasil
Ano: 2018
Fotografias: Luiz Felipe Cesário (e-mail)
Fabricantes: Docol, Detalli, Portinari, Delta, Gravia
Softwares Utilizados: Sketchup, AutoCAD
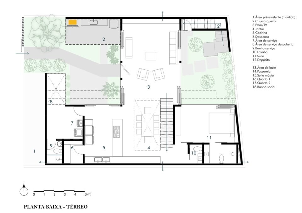
O desenvolvimento dessa casa surgiu a partir de um conceito de sala-varanda, que consiste na abertura de jardim para os dois lados da sala. Essa ideia surgiu a partir da necessidade do contato com o jardim em conflito com o fato de a casa ocupar toda a largura do terreno.

A partir disso, a casa vai se dispondo: a cozinha é integrada à sala, formando um L. Do outro lado, estão o lavabo e uma suíte, bastante integrada ao jardim.

O segundo piso conta com uma passarela que divide os fluxos: de um lado está a suíte máster; do outro, os quartos dos filhos; e um terceiro leva a um solarium, gerando um lugar de liberdade em meio a um ambiente urbano bem condensado.

Assim, a área de lazer tem uma boa integração com o interior da casa: além de possuir esse acesso a partir da passarela, criou-se uma comunicação visual entre a sala e o solarium.

Duas grandes premissas colocadas pelos clientes: grandes aberturas de vidro e a não utilização de cortinas na casa. Como solução para a privacidade e a claridade, utilizamos painéis de madeiras de fibra de média densidade que correm atrás das grandes janelas.

E para barrar a insolação proveniente dessas grandes aberturas no segundo piso, a solução usada foram as prateleiras de luz nos quartos.
As prateleiras são divisores horizontais que, além de protegerem as aberturas, separam as aberturas entre uma grande janela embaixo e uma pequena basculante em cima, ficando esta responsável por eliminar o ar quente.

A claridade natural contrasta-se com a estrutura metálica aparente, de aço pesado e perfis quadrados, na concepção de uma espécie de uma leve e delicada estética industrial.

Retomando ao desejo de liberdade em meio ao denso urbano, cabe destacar um elemento dos quartos no segundo piso: o guarda-corpo feito com cabos de aço, que, sem afetar a segurança, permitem as grandes aberturas, agregando uma impressão de quarto avarandado.













Deixe uma resposta